top of page

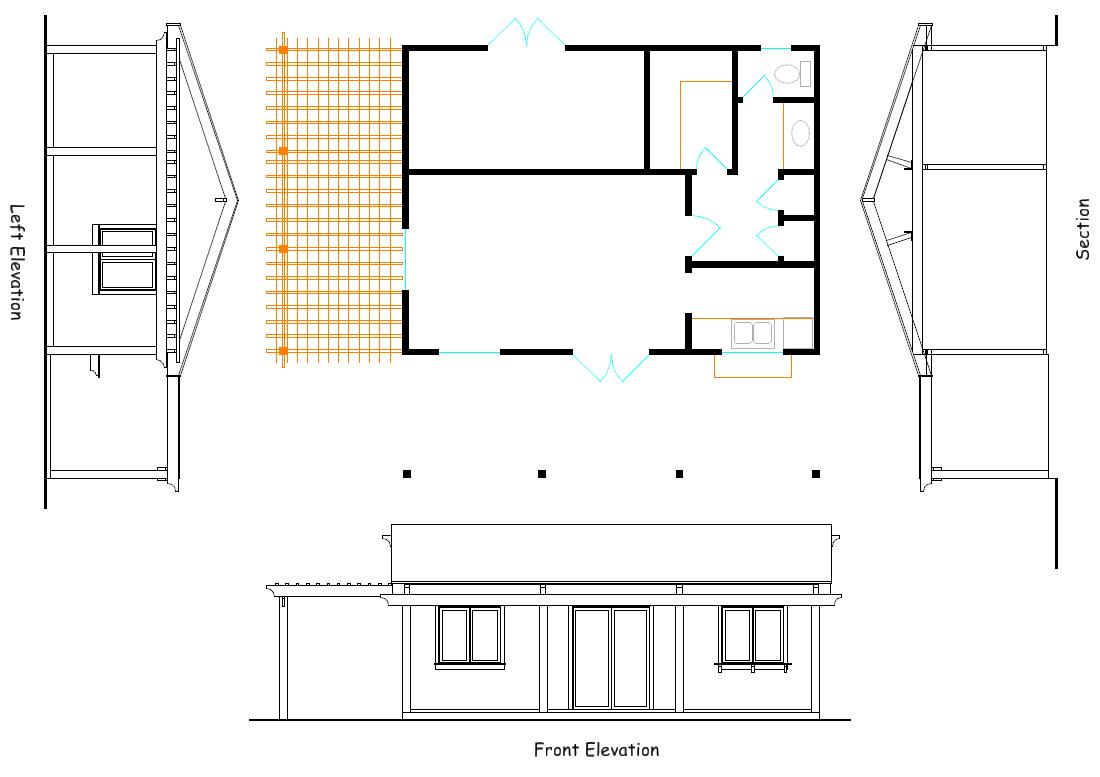
Below are some of the construction drawings that were used.

Site Plan

Elevations

WizardDesigns
Elevations.jpg

Copyright © 2025 WizardDesigns

bottom of page