Home
Services
Portfolio
Stock Plans
3D Virtual Tours
Designs
Affiliates
About
Contact
More
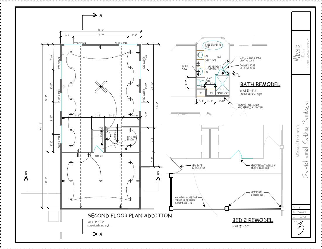
Below are some of the construction drawings that were used.
Front Elevation
First Floor Plan
Second Floor Plan
Elevations
Sections
Site Plan